123 14th StreetVerplanck, NY 10596




Mortgage Calculator
Monthly Payment (Est.)
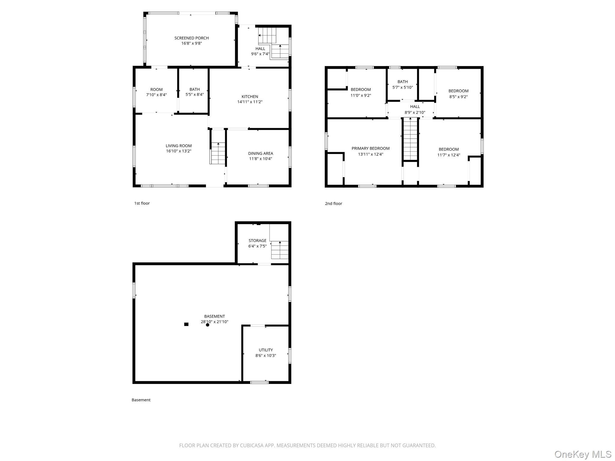
$2,687****More photos will be up on Sunday*****Welcome to this charming 4-bedroom, 2-full bathroom home nestled in the Hudson River village of Verplanck, New York. Offering a comfortable and versatile layout, this home blends classic features with inviting living spaces perfect for everyday living and entertaining. The main level features a formal dining room, ideal for hosting gatherings or enjoying holiday meals, living room, kitchen, office space, and a full bathroom along with a bright and airy sunroom that provides the perfect spot for morning coffee, reading, or relaxing year-round. Upstairs, you’ll find four well-proportioned bedrooms and a full bathroom, offering flexibility for guests, home office space, or growing households. Step outside to a level, fully fenced-in backyard designed for both privacy and enjoyment. The stone patio creates a perfect setting for outdoor dining, barbecues, or simply unwinding in your own private retreat. Located just minutes from the Hudson River, parks, and local amenities, this home offers a wonderful opportunity to enjoy suburban living with a small-town feel, while still being within easy reach of major roadways and Metro-North. Don’t miss the chance to make this inviting Verplanck home your own. Showings begin on April 21,2026
| yesterday | Listing first seen on site | |
| yesterday | Listing updated with changes from the MLS® |
Based on information submitted to the MLS GRID as of 2026-04-17 11:23 PM EDT. All data is obtained from various sources and may not have been verified by broker or MLS GRID. Supplied Open House Information is subject to change without notice. All information should be independently reviewed and verified for accuracy. Properties may or may not be listed by the office/agent presenting the information.